跳至主內容區

花蓮縣瑞穗鄉富源國民小學

:::
This is an example of a HTML caption with a link.
:::

左邊區域內容

OPENID 登入

會員登錄

搜索

:::

主內容區域

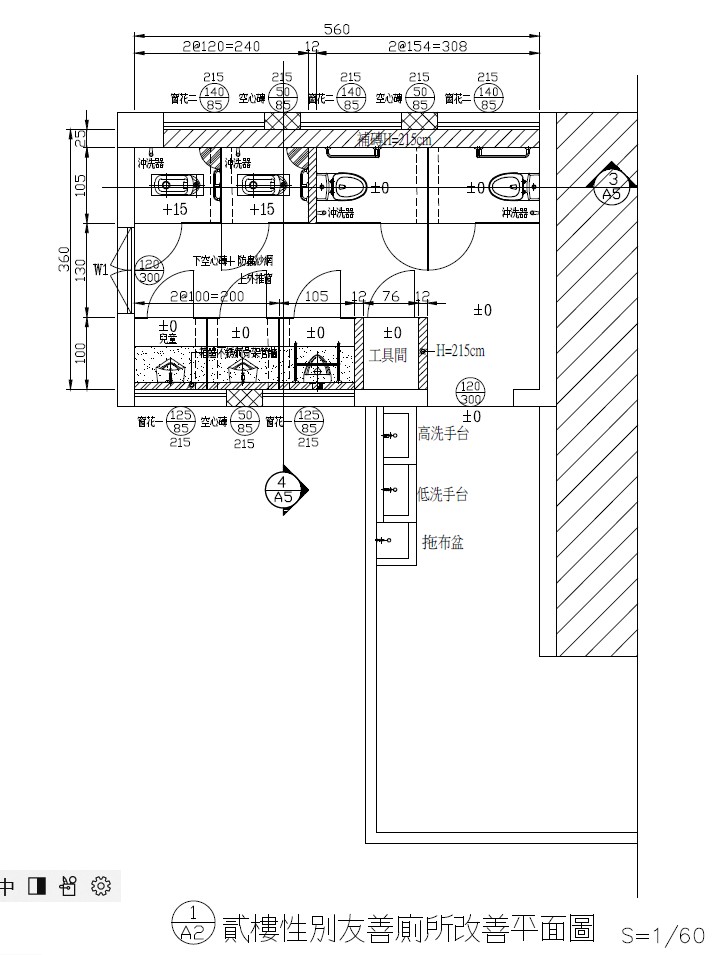
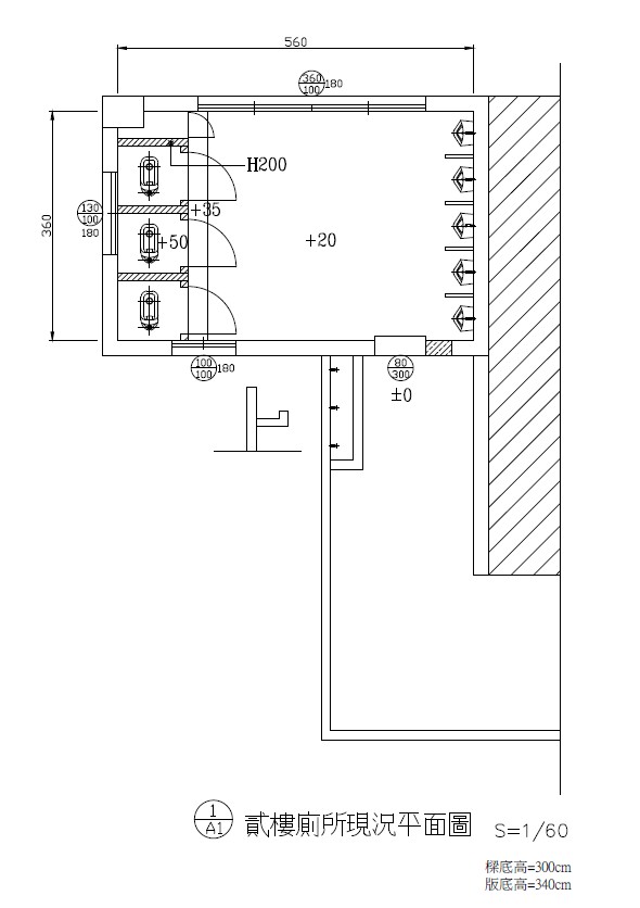
公告 彭智明 - 總務 | 2025-12-15 | 點閱數: 294

115年度行政大樓二樓的老舊廁所要進行改建,預計會改建成一間性別友善廁所。附件有現況廁所的平面圖和性別友善廁所的平面圖及空間美感設計說明。

如果對於本校即將改建的廁所有寶貴的建議,可以向校方提出,作為後續規劃的參考。

聯絡人:總務主任 張馨云主任 03-8811029#13

  • 現況平面圖.jpg
    1) 現況平面圖.jpg
  • 改善平面圖.jpg
    2) 改善平面圖.jpg
  • 空間美感設計說明書.pdf
    3) 空間美感設計說明書.pdf
:::

右邊區域內容

隨機小語

堅決的信心,能使平凡的人,成就不平凡的事。

佚名

頁尾區域